Milano
Via Sebastiano del Piombo
RIF:
T2269
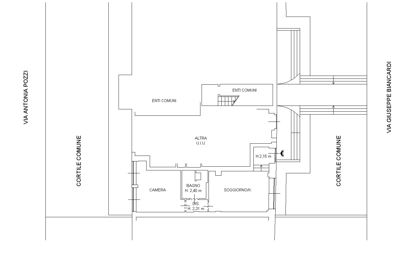
Via Sebastiano del Piombo – Via Antonia Pozzi.
Nel prestigioso quartiere della Vecchia Fiera, a pochi passi dalla tangenziale ovest, proponiamo un luminoso bilocale di 60 mq completamente ristrutturato, situato in un palazzo anni ’60 dotato di servizio di portineria mezza giornata. L’immobile, caratterizzato da una doppia esposizione e da un comodo doppio ingresso, sia indipendente direttamente dallo spazio verde antistante che dalla scala condominiale, si compone di: ingresso, zona living con cucina a vista arredata inclusa, camera da letto matrimoniale e bagno. Dotazioni: riscaldamento centralizzato con radiatori, aria condizionata, sistema di ventilazione meccanica controllata (VMC), porta blindata e pavimentazione in parquet. Prezzo € 330.000 – Classe energetica C – 96,18 kWh/m² anno
Per informazioni tel. 024984412
Monti32 Immobili www.monti32.it
Milano
Via Sebastiano del Piombo
RIF:
T2269












