Milano
Via Arzaga
RIF:
T2272
Via Arzaga – Via Giovanni Alfonso Borrelli
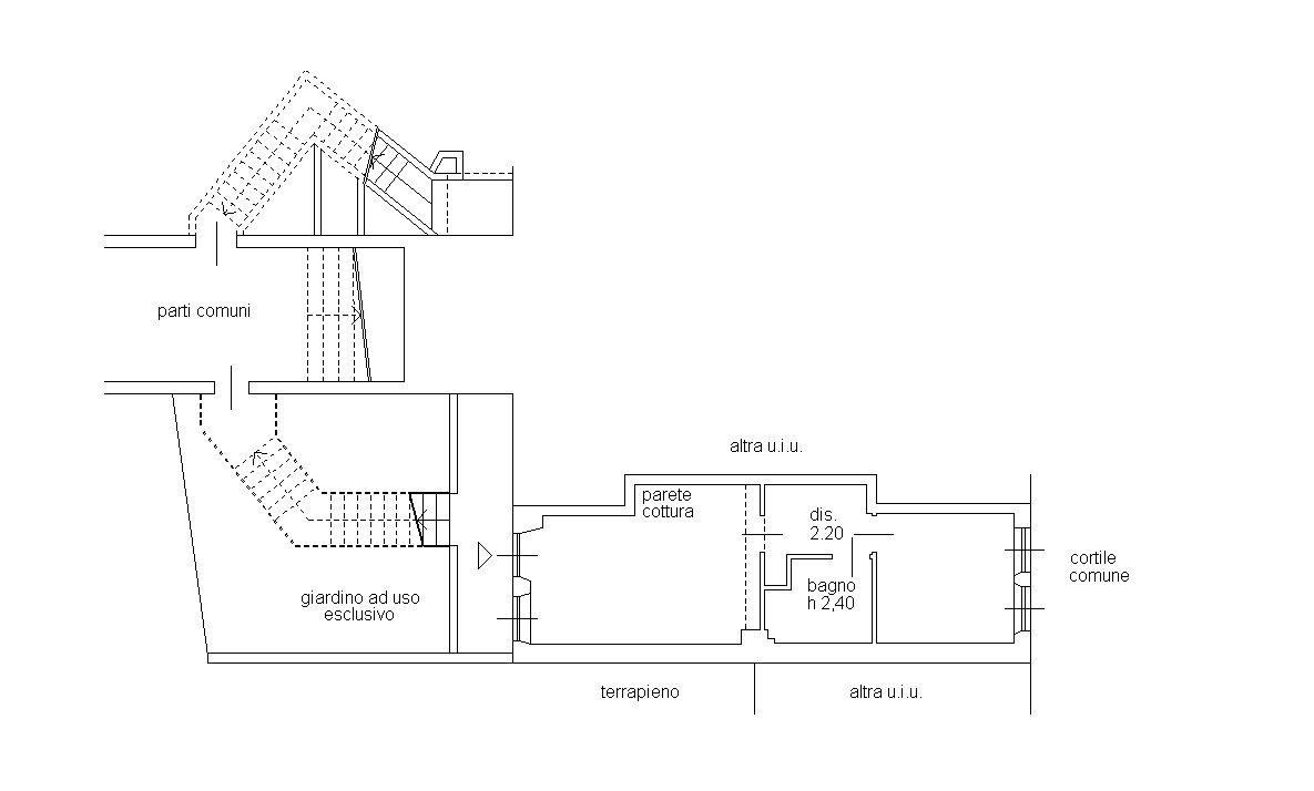
In un quartiere prevalentemente residenziale, caratterizzato da eleganti palazzi signorili e dalla vicinanza al Naviglio Grande e a Porta Genova, proponiamo luminoso bilocale di 47 mq completamente ristrutturato, situato in un contesto anni ’60 con servizio di portineria mezza giornata. L’immobile, con tranquilla doppia esposizione interna e ingresso indipendente direttamente dallo spazio verde ad uso esclusivo, è composto da: ingresso, soggiorno con cucina a vista arredata, camera da letto matrimoniale e bagno. Dotazioni: riscaldamento centralizzato con radiatori, aria condizionata, porta blindata, pavimentazione in parquet. Prezzo € 270.000. Possibilità acquisto arredamento. Classe energetica C – 71,29 kWh/m² anno
Per informazioni tel. 024984412
Monti32 Immobili www.monti32.it
Milano
Via Arzaga
RIF:
T2272


















