Milano
Via Civitali
RIF:
T2277
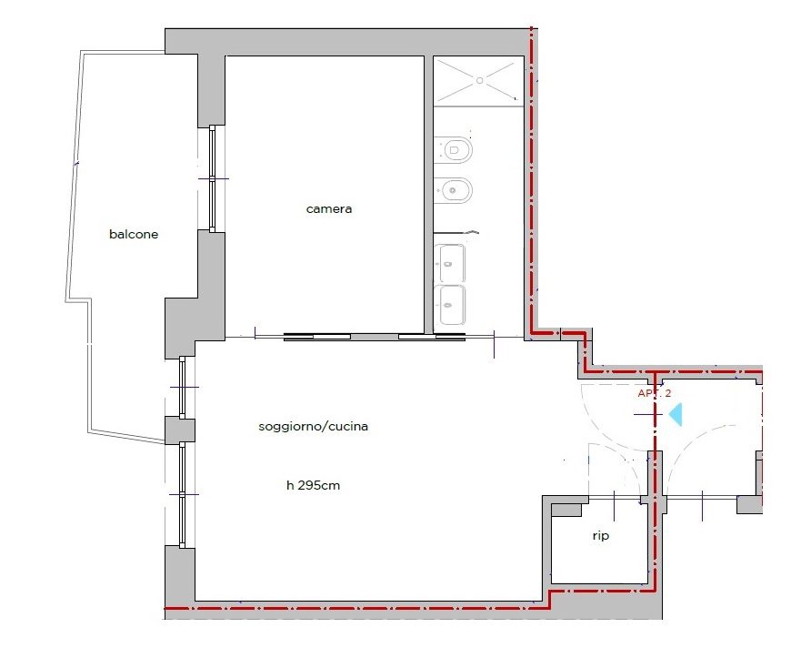
Via Civitali – San Siro.In contesto anni 60 tranquillo e ben curato, in posizione strategica a soli 200 metri dalla fermata Metro Lilla Ippodromo/San Siro, proponiamo in vendita luminoso bilocale di 50 mq, completamente ristrutturato a nuovo e mai abitato, situato al 2° piano senza ascensore. L’appartamento è composto da ingresso, accogliente soggiorno con cucina a vista e ampio ripostiglio adibito a lavanderia. La zona giorno gode di doppio affaccio su Via Civitali, con finestra e porta finestra che conduce a un piacevole terrazzino vivibile di circa 8 mq. La zona notte include una spaziosa camera matrimoniale, sempre con accesso al terrazzino, e bagno. L’immobile è rifinito con materiali di pregio, completamente arredato e dotato di riscaldamento centralizzato e aria condizionata Daikin. Possibilità di acquistare box auto e ampia cantina finestrata. Prezzo € 290.000 Classe energetica D – 147 kWh/m² anno.
Per informazioni tel. 024984412
Monti32 Immobili www.monti32.it
SCARICA T2277
Milano
Via Civitali
RIF:
T2277





















