Milano
Via Previati
REF:
T5109
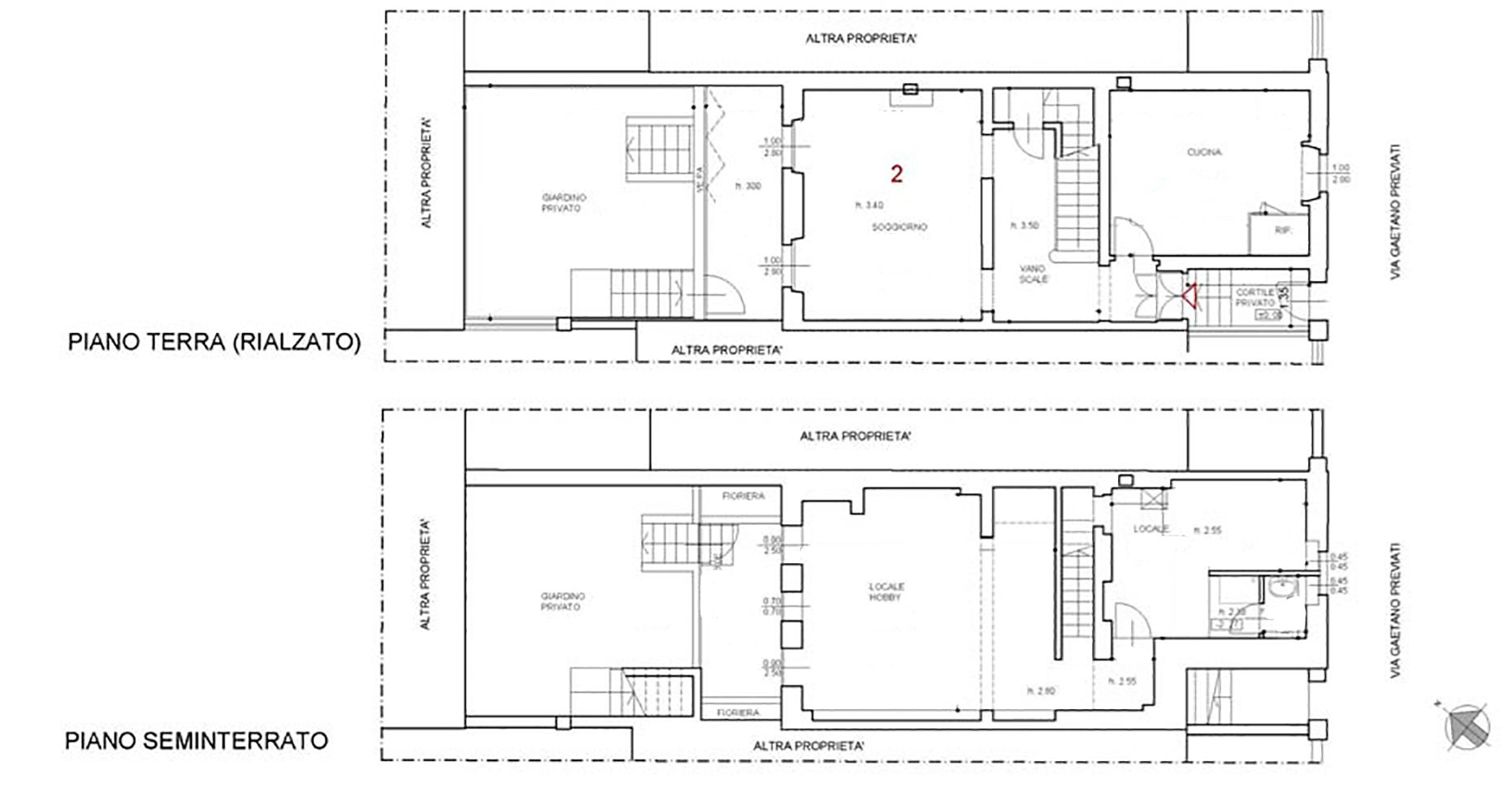
Via Previati – Zona Fiera / City Life. Located in one of Milan’s most prestigious residential neighborhoods, just a short walk from the Amendola metro station (M1 line) and in the immediate vicinity of the renowned City Life district, we offer a residence of great charm and rare availability. The setting is elegant and private, characterized by beautiful period buildings in Liberty style, while remaining perfectly serviced: restaurants, schools, green areas, and the refined boutiques of Corso Vercelli are all within easy walking distance. The highlight of this offering is a stunning 1920s terraced house of approximately 260 sqm, enhanced by a private garden and arranged over four levels, connected by a refined internal stone staircase with wrought-iron railings.Layout:Ground floor: elegant living room with fireplace, bright veranda area with direct access to the well-kept private garden, and a fully fitted eat-in kitchen.First floor: sleeping area comprising two spacious double bedrooms, one with a balcony, two bathrooms, and a walk-in wardrobe.Attic floor: versatile space suitable as a guest bedroom or study, with a ceiling height of 2.35 m.Basement level: large taverna with access to the garden, laundry room, and bathroom.The property is completed by a convenient storage room and the possibility of purchasing a garage nearby. The interior conditions are excellent, featuring high-quality parquet flooring. The property is equipped with independent heating, air conditioning, alarm system, and security door.Price: € 2,400,000. Energy rating: E – 208.18 kWh/sqm year
For information tel. 024984412
Monti32 Immobili www.monti32.it
Milano
Via Previati
RIF:
T5109






























